 
     CORDILLERAS REDWOOD CITY
 
      
      
      
      
      
     WOOD RANCH DANVILLE
 
     LA GONDA DANVILLE
 
     EVERGREEN DANVILLE
 
      
      
      
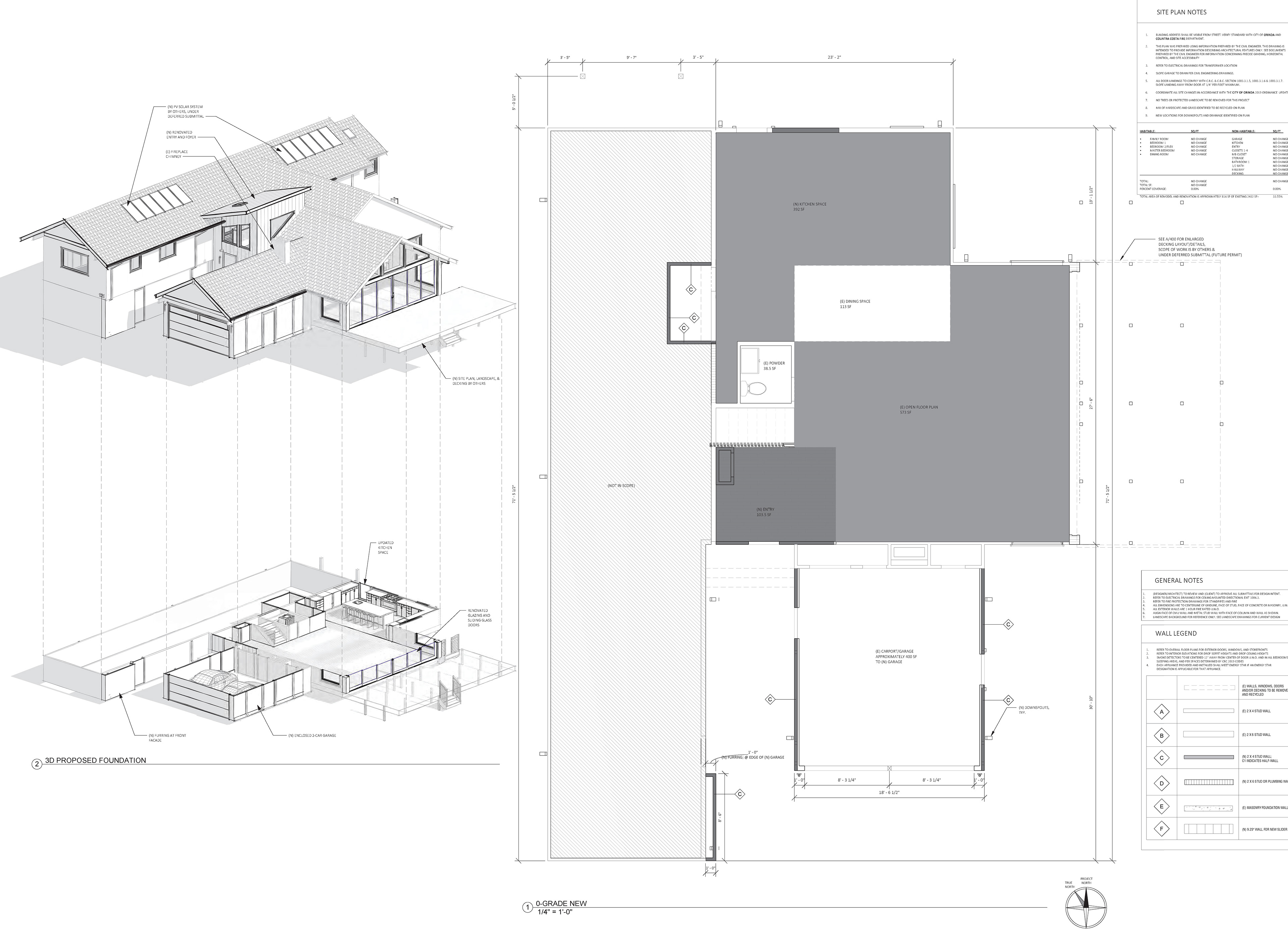
     BATES ORINDA
 
      
     LA QUESTA DANVILLE
 
      
     CELINE DANVILLE
 
      
      
     CONTESSA LAFAYETTEE
 
      
      
      
      
     